Co wyróżnia ten projekt?
Klasyczny dom z poddaszem użytkowym to elegancka i funkcjonalna przestrzeń, łącząca tradycyjny styl z nowoczesnym komfortem. Charakteryzuje się symetryczną bryłą, spadzistym dachem oraz dużymi oknami, które zapewniają doskonałe doświetlenie wnętrza.
Na parterze znajduje się przestronny salon, jadalnia oraz kuchnia, a także dodatkowy pokój i łazienka. Poddasze oferuje przytulne sypialnie oraz komfortową łazienkę. Stylowe wykończenie, jasna kolorystyka i naturalne materiały podkreślają ciepły, domowy charakter budynku.

rodzina 2+2

duży salon

wysoka ścianka kolankowa

4 pokoje
3,38 m²
3,23 m²
1,66 m²
8,6 m²
2,17 m²
23,35 m²
7,14 m²
1,99 m²
Suma
51,52 m²
3,38 m² (3,93 m²)
10,4 m² (11,7 m²)
9,0 m² (10,79 m²)
8,9 m² (10,35 m²)
5,9 m² (7,48 m²)
3,8 m² (4,67 m²)
Suma
41,38 m² (48,92 m²)
3,95 m²
2,08 m²
2,81 m²
8,75 m²
2,17 m²
20,32 m²
7,79 m²
1,44 m²
Suma
49,31 m²
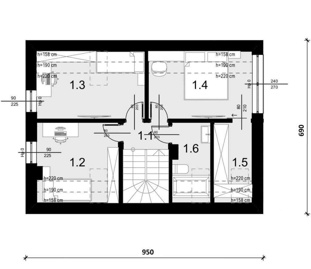
3,38 m² (3,47 m²)
9,4 m² (10,97 m²)
10,3 m² (12,38 m²)
9,86 m² (11,87 m²)
4,5 m² (5,2 m²)
4,4 m² (5,12 m²)
Suma
41, 86 m² (49,01 m²)
Wybierz do jakiego stanu mamy zająć się budową
Powyższe ceny obowiązują na terenie miasta Krakowa oraz powiatu krakowskiego.
Projektowanie i Pozwolenie na Budowę
Przedstawiona oferta ma charakter informacyjny i nie stanowi oferty handlowej w rozumieniu Art. 66 par. 1 Kodeksu Cywilnego oraz innych przepisów prawnych.

